Ihre neue Arztpraxis in Plauen – helle Räume in der Hammerstraße 84

Hammerstraße 84 | 08523 Plauen
Objektbeschreibung
Stadtgebiet
Zentrumsnähe
Keller/Box
Trockenraum
Wäscheboden
Heizungsart
Allgemeine Infos
Wohnungs-Nr.
154984/84/1
Etage
EG
Raumzahl
5
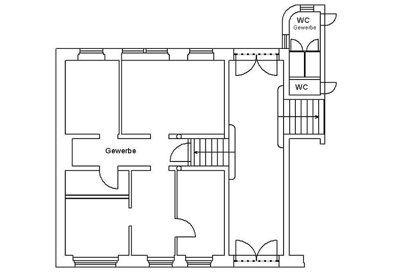
Fläche
91,35 m²
frei ab
01.04.2023
Nutzbar als/für
Praxis
Laden
Gastronomie
Lager
Büro
Besonderheiten
Energieausweisdaten
Energieträger
Fernwärme
Energieverbrauch
131,50 kWh/(m²*a)
Energieklasse
E
Gebäudebaujahr
1890
Energieverbrauch enthält Warmwasser.
Stadtgebiet

Ganz nah dran, aber doch nicht mittendrin – so lässt sich das Leben in Zentrumsnähe beschreiben. Zum einen profitiert man von kurzen Wegen und dem breiten Angebot des Plauener Stadtzentrums, auf der anderen Seite wohnt man doch etwas ruhiger und zurückgezogener als direkt am Markt oder auf der Bahnhofstraße. Weiterer Pluspunkt unserer Wohnquartiere in Zentrumsnähe: der Stadtpark ist nur einen Katzensprung entfernt und lädt zum Seele baumeln lassen ein.

Die wohl bekanntesten WbG-Häuser in Zentrumsnähe sind die Punkthäuser. Auch von weitem immer ein Blickfang haben die Bewohner der Punkthäuser vor allem aus den oberen Wohnetagen einen sensationellen Blick bis weit über die Stadttore der Spitzenmetropole hinaus.

Mit dem Laden der Google Karte akzeptieren Sie die Datenschutzerklärung von Google.
Mehr erfahren

Kontakt

Wohnungsbaugesellschaft Plauen mbH
Bahnhofstraße 65
08523 Plauen

Telefon:  03741 703-0
Telefax:  03741 703-120

Hotline: 03741 703-161

E-Mail:   post@wbg-plauen.de

Öffnungszeiten

Hauptgeschäftsstelle

Montag: 09:00 - 12:00 Uhr
Dienstag: 09:00 - 18:00 Uhr
Mittwoch: 09:00 - 12:00 Uhr
Donnerstag: 09:00 - 17:00 Uhr
Freitag: 09:00 - 12:00 Uhr
Havariedienst

Bei akuten Notfällen, wie z.B. Rohrbruch, Totalausfall der Heizung, Strom, Wasser oder Gas und Defekte bei denen Gefahr für Leib und Leben besteht erhalten Sie bei unserer Havarie-Hotline auch  außerhalb unserer Sprechzeiten schnelle und kompetente Hilfe.

03741 134 133